Kernsanierte Eigentumswohnung am Gruschaplatz
1140 Wien
Kontaktdaten
-
NameHerr Akad. Immobilienmanager Jürgen Heinzl
-
AnschriftSchwedengasse 1a
3500 Krems -
Telefon
-
Mobil
Objektdaten
-
Objekt-ID1260
-
Kaufpreis339.000 EUR
-
Käuferprovision3 % des Kaufpreises zzgl. 20 % USt.
-
ObjekttypWohnung
-
Adresse1140 Wien
Wien -
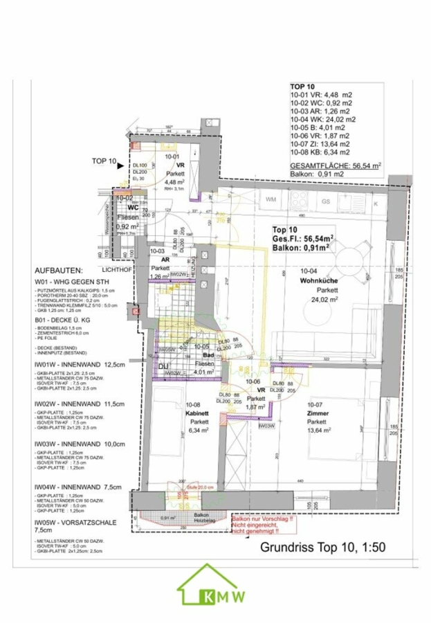
Wohnfläche ca.56,54 m²
-
Zimmer2,5
-
Badezimmer1
-
Separate WC1
-
Zustandvollsaniert
Ausstattung / Merkmale
- ✓ Separates WC
Objektbeschreibung
Die kernsanierte Wohnung befindet sich im 1. Obergeschoß, verfügt über eine Wohnfläche von rund 56 m² und verteilt sich auf Vorraum, Abstellraum, separates WC, Bad mit Dusche, möblierte Wohnküche, ein Schlafzimmer sowie ein Kabinett.
Die Wohnung wurde hochwertig saniert und bietet folgende Ausstattung:
- Beheizung über eine moderne Luftwärmepumpe
- Fußbodenheizung in der gesamten Wohnung
- Fenster mit 3-Scheiben-Isolierverglasung von Josko
- Klebeparkett Fischgrät geölt in den Wohnräumen
- Großformatfliesen (Keramik oder Feinsteinzeug)
- Hochwertige Altwiener Türen
Infrastruktur: Strassenbahn 50 Meter, U-Bahn 600 Meter, ausreichend Parkplätze in der Umgebung
Ich freue mich auf Ihre Anfrage!
Lage
Die dargestellte Position der Immobilie ist nur eine ungefähre Angabe.







